物件価格
月々のお支払い例
1,659.77円
※金利1.20% 借入金額:物件価格、借入期間35年
物件の特徴
主な設備
システムキッチン
洗面所独立
オートロック
モニタ付インターホン
バルコニー
2面バルコニー
エレベーター
主な特徴
管理人巡回
角部屋
南西角部屋
3沿線以上利用可
小学校徒歩10分以内
眺望良好
陽当り良好
24時間ゴミ出可
ペット相談
事務所使用可
目黒区青葉台3丁目に位置する、フルリノベーション済みマンションのご紹介です。中目黒・渋谷エリアを生活圏とする人気の立地で、都心へのアクセスと住環境を両立した物件です。
【物件のポイント】
・人気エリア: 目黒区青葉台・中目黒・渋谷が生活圏
・交通利便性: 神泉駅徒歩9分・渋谷駅徒歩14分
・資産性: 都心人気エリア×リノベーション物件
・ペット飼育可: 犬・猫と暮らせる住まい(細則あり)
【建物・室内設備】
・フルリノベーション済: デザイン性と機能性を両立
・南向き角住戸: 日当たり・通風良好で開放感あり
・スマートホーム: Philips Hue等の先進設備導入
・安心設備: オートロック・TVモニター付インターホン
※「目黒区 マンション」「中目黒 リノベーション」「渋谷 住みやすいエリア」などの検索にも対応しやすい物件です。
物件概要
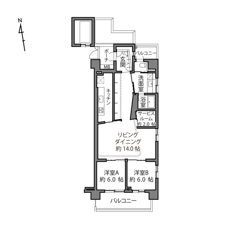
| 価格 | 1億8,980万円 | 間取り | 2LDK+S |
|---|---|---|---|
| 物件種別 | 中古マンション | ||
| 所在地 | 東京都目黒区青葉台3丁目 | ||
| アクセス | 京王井の頭線『神泉』 徒歩9分 (約720m) JR山手線『渋谷』 徒歩14分 (約1120m) |
||
| 専有面積 | 壁芯 81.30㎡ | 所在階 | 6階建/2階部分 |
| 主要採光 | 南西向 | バルコニー | 南西向14.31㎡ |
| その他 | |||
| 権利 | 所有権 |
||
| 保証・評価 | |||
| リフォーム | |||
| 総戸数 | 面積 | ||
| 築年月 | 2022年(令和4年)10月築 | 建物構造 | RC |
| 施工会社 | |||
| 管理会社 | 株式会社東急コミュニティー | 管理方式 | 全部委託 巡回管理 |
| 駐車場 | |||
| 都市計画 | 用途地域 | 1種住居 | |
| 建ぺい/容積率 | 土地国土法 | ||
| 法令制限 | |||
| 小学区 | 菅刈小学校 徒歩6分 (約450m) | 中学区 | 第一中学校 徒歩12分 (約950m) |
| 現況 | 空 | 引渡 | 相談 |
| 管理費 | 18,500円/月 | 修繕積立金 | 20,300円/月 |
| その他費用 | |||
| 備考 | |||
| 物件番号 | 4679948 | 取引態様 | 媒介 |













本物件の魅力は、「目黒区青葉台」という人気エリアに位置しながら、「フルリノベーション済み」である点です。中目黒や渋谷を生活圏とする利便性に加え、都心でありながら落ち着いた住環境が整っています。
また、南向きの角住戸につき日当たり・通風ともに良好で、開放感のある住空間が広がります。スマートホーム設備など、現代のライフスタイルに合った機能性も魅力です。
「目黒区でリノベーションマンションをお探しの方」「中目黒・渋谷エリアで住まいを検討されている方」に、ぜひご覧いただきたい一室です。